loading

外観正面の様子。真っ白な外観に植栽が映えます。

家全体がL字型になっており、その中心にお庭をもうけました。

勾配天井の高さとキッチン天井の低さのコントラストが広さを演出します。

ひな壇の階段には白いスチール手摺をしつらえました。

キッチンは『ラフィーナネオ』(永大産業)を採用しています。

書斎の窓からは庭が望め、四季折々の表情を楽しめます。

見学予約・資料請求
TEL.087-883-8787

営業時間 / 09:00〜18:00(水曜定休、年末年始休み)

Comori
Comori

包みこまれるような大屋根と日本建築にある
深い軒先。木のぬくもりに包まれた木陰の
ように、家族の時間をやさしく育みます。

PRICE

総額

販売価格: 4,300万円 (税込)

Comori

内訳

・建物本体:¥27,700,000 (税込)
・付帯付属設備:¥2,284,000(税込)
(家具家電・カーテン・ガス給湯器・ガス衣類乾燥機)
・土地:¥10,686,000(71.24 坪 ×15 万円)
・エクステリア:¥2,330,000(税込)

POINT

大屋根がダイレクトに反映された勾配天井のLDK

BACK

NEXT

特徴的なのは、大屋根がダイレクトに反映された勾配天井。加えて、外への視線の抜けを意識した窓の配置や明るいトーンで統一された室内コーディネートが、広さや爽やかさを印象づけます。

特徴的なのは、大屋根がダイレクトに反映された勾配天井。加えて、外への視線の抜けを意識した窓の配置や明るいトーンで統一された室内コーディネートが、広さや爽やかさを印象づけます。

特徴的なのは、大屋根がダイレクトに反映された勾配天井。加えて、外への視線の抜けを意識した窓の配置や明るいトーンで統一された室内コーディネートが、広さや爽やかさを印象づけます。

  1. EXTERIOR

    北欧の急勾配屋根と白いミニマルな形状に日本的な大屋根と深い軒先がもたらす陰影を加えました。レッドシダーの温かさを活かし、全体の統一感を北欧的配色で整えています。

  2. STUDY SPACE

    寝室の手前に配置された書斎。洞窟のようなこの小さなスペースで『Comori』の象徴する“ おこもり感” や“ 包まれ感” を味わうことができます。

  3. BEDROOM

    一段上がった先に現れる主寝室。床が
    上がった分だけ天井高が低く設定され
    ているため、スペース全体に落ち着き
    が生まれました。また、間接照明は夜
    を穏やかな時間に演出してくれます。

  4. STAIRS

    すっきりとしたデザインのスチール手摺。手摺を少し内側に設置してできたスペースを利用し、お気に入りの雑貨を飾ることができます。

見学予約・資料請求
TEL.087-883-8787

営業時間 / 09:00〜18:00(水曜定休、年末年始休み)

  • 住宅性能

    長期優良住宅取得

    耐震等級3

    UA値=0.42W/㎡・K(断熱等級6)

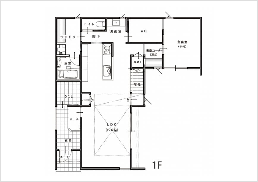
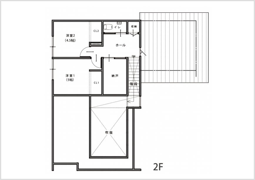
  • 間取り

    1F床面積:78.09㎡(23.62坪)

    2F床面積:35.86㎡(10.84坪)

    延床面積:113.95㎡(34.46坪)

    総施行面積:116.66㎡(35.29坪)

    土地面積:235.42㎡(71.21坪)

間取り図は拡大表示が可能です

展示場所

Google Map

見学予約・資料請求
TEL.087-883-8787

営業時間 / 09:00〜18:00 (水曜定休、年末年始休み)