loading

三角屋根が特徴的な外観。東側にお庭もつくりました。

北欧テイストのしつらえの中にも日本的な温かみを携えたLDK。

ストリップ階段の下には、書斎をしつらえました。

リビングの格子は書斎とリビングを緩やかに仕切る役割が。

『GRAFTEKT』のキッチンはデュエを採用。シックな雰囲気が空間に馴染みます。

凹凸のあるデザインと外壁素材が際立つ夜の外観。

見学予約・資料請求
TEL.087-883-8787

営業時間 / 09:00〜18:00(水曜定休、年末年始休み)

Enne
Enne

北欧住宅の原型でもある三角屋根がモチーフ。
シャープな佇まいの中に柔らかさと
温かみを含ませたデザインが特徴的です。

PRICE

総額

販売価格: 4,400万円 (税込)

Enne

内訳

・建物本体:¥28,000,000(税込)
・付帯付属設備:¥2,113,500(税込)
(家具家電・カーテン・エコキュート)
・土地:¥10,186,500(67.91 坪×15 万円)
・エクステリア:¥3,700,000(税込)

POINT

北欧テイストのLDK空間

BACK

NEXT

グレーのフロアタイルをベースカラーに“縁(ふち=窓際など)” や家具などに木質素材をアクセントとして添えることで北欧テイストの空間にほのか な日本的温かみを加えています。

グレーのフロアタイルをベースカラーに“縁(ふち=窓際など)” や家具などに木質素材をアクセントとして添えることで北欧テイストの空間にほのか な日本的温かみを加えています。

グレーのフロアタイルをベースカラーに“縁(ふち=窓際など)” や家具などに木質素材をアクセントとして添えることで北欧テイストの空間にほのか な日本的温かみを加えています。

  1. EXTERIOR

    北欧住宅の原型である三角屋根をモチーフにソリッドな造形とニュアンスカラーの塗り壁を合わせることでシャープな佇まいの中に柔らかさと温かみを含ませたデザインとしています。

  2. STAIRS & STUDY SPACE

    階段下の小下がりスペースは、タイルカーペット敷きの多用途な書斎。くつろぎの場や子どもの遊び場としても機能します。また格子越しにリビングとゆるやかに繋が
    り、家族の気配の中で個人の時間を愉しめる、居場所を結ぶ「縁」の設えです。

  3. KITCHEN

    存在感を感じさせないマットなカラーの『GRAFTEKT』キッチンを採用。Ⅱ型配置によって、作業スペースの拡充とレンジフードの圧迫感を抑制しています。

  4. BALCONY

    三角屋根の勾配を感じられるバルコニーは
    ウッドデッキをもうけています。軒が深い
    ため、“外でもなく、内でもない” 中間的な
    場所で特別な時間を過ごせそうです。

見学予約・資料請求
TEL.087-883-8787

営業時間 / 09:00〜18:00(水曜定休、年末年始休み)

  • 住宅性能

    長期優良住宅取得

    耐震等級3

    UA値=0.46W/㎡・K(断熱等級6)

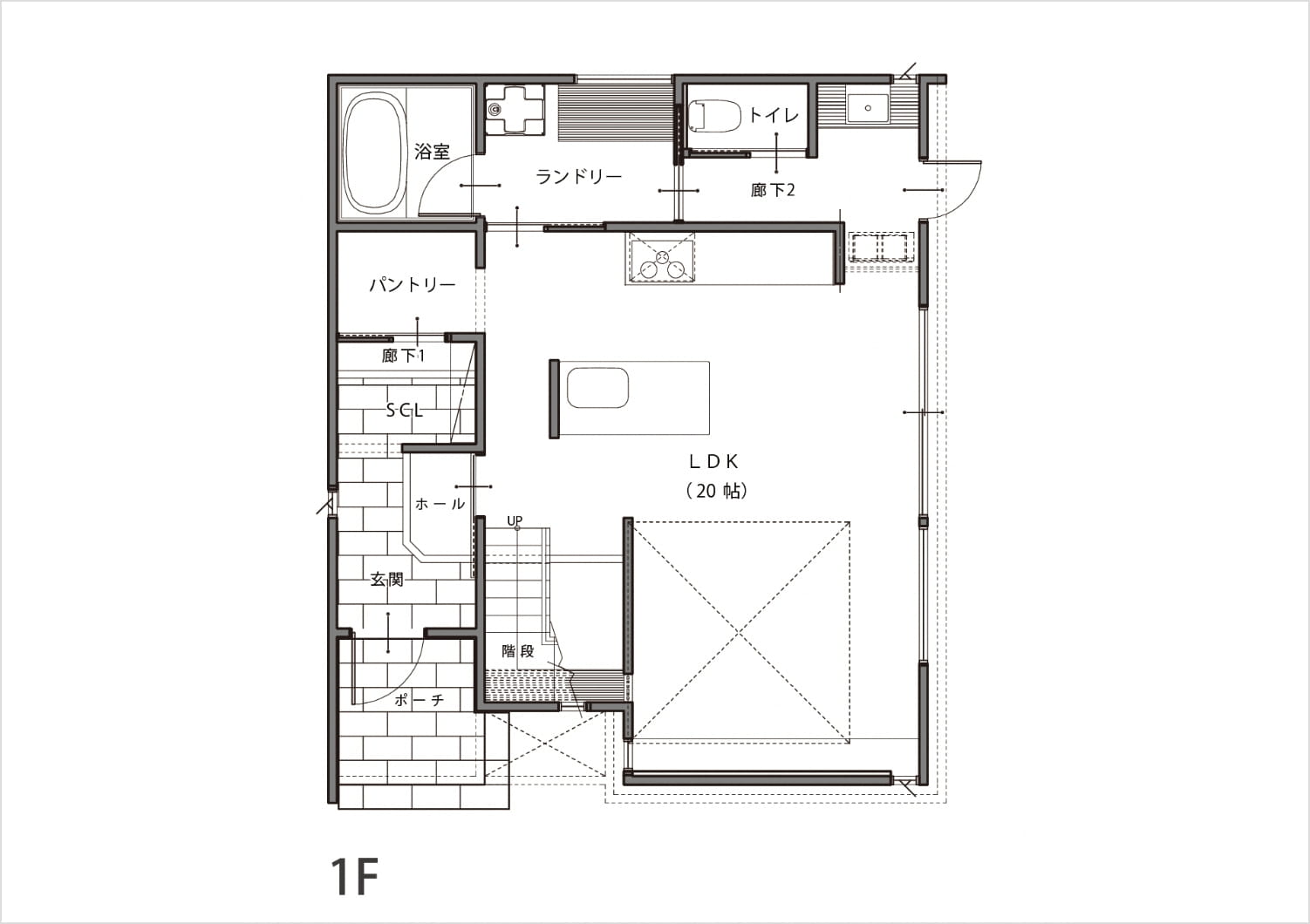
  • 間取り

    1F床面積:57.96㎡(17.53坪)

    2F床面積:51.70㎡(15.63坪)

    延床面積:109.66㎡(33.16坪)

    総施行面積:116.95㎡(35.38坪)

    土地面積:224.56㎡(67.92坪)

間取り図は拡大表示が可能です

展示場所

Google Map

見学予約・資料請求
TEL.087-883-8787

営業時間 / 09:00〜18:00 (水曜定休、年末年始休み)